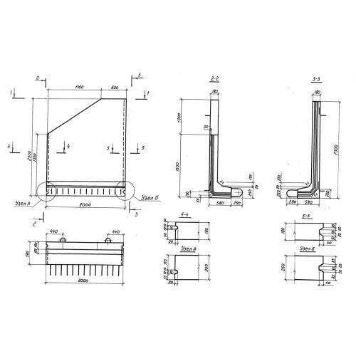
НГ 25

Чертеж изделия:
Характеристики изделия:
ПараметрЗначение
длина2000 мм
ширина850 мм
высота2500 мм
вес2480 кг
серия3.820.1-39

НГ 25 Г-образные конструкции с "ныряющей" вертикальной стенкой многоцелевого назначения по серии 3.820.1-39.