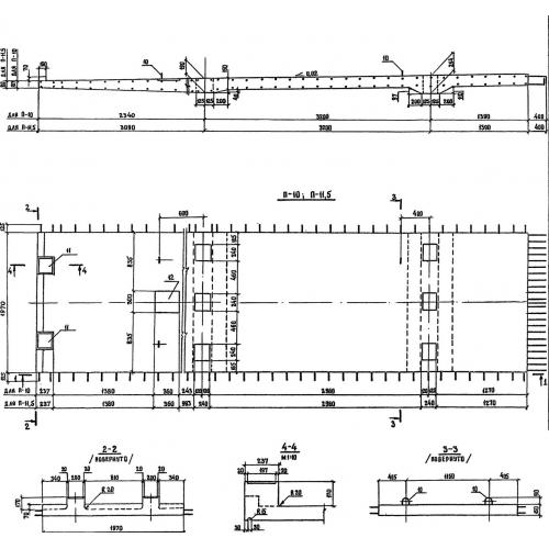
П-10

Чертеж изделия:
Характеристики изделия:
ПараметрЗначение
длина7330 мм
ширина2220 мм
высота254 мм
вес5400 кг
серия3.503.9-43/89

П-10 Блоки плит по серии 3.503.9-43/89.