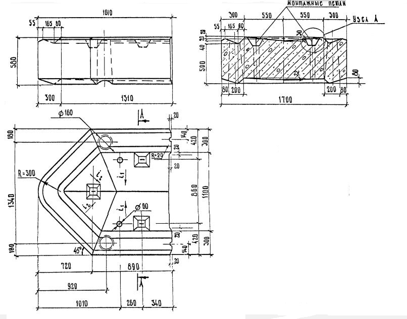
Ц-7

Чертеж изделия:
Характеристики изделия:
ПараметрЗначение
длина1610 мм
ширина1700 мм
высота580 мм
масса2700 кг
нормативный документСерия 3.503-23

Ц-7  Блоки цокольной части Серия 3.503-23.