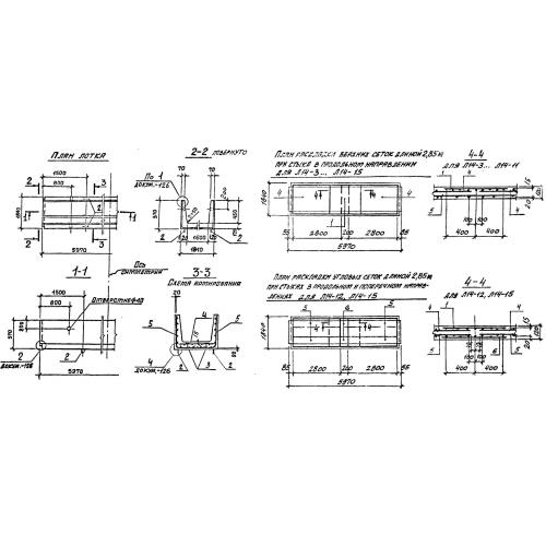
Л 14 лотки

Чертеж изделия:
Характеристики изделия:
ПараметрЗначение
длина5970 мм
ширина1840 мм
высота570 мм
масса4650 кг
нормативный документСерия 3.006.1-2/87

Л 14 Лотки теплотрасс Серия 3.006.1-2/87.