ПС

Чертеж изделия:
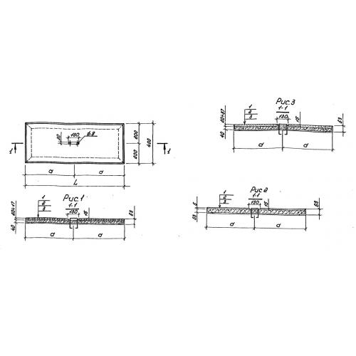
Характеристики изделия:
ПараметрЗначение
длина1000 мм
ширина400 мм
высота63 мм
вес55 кг
серия3.006 КР-1

ПС Плиты съемные по серии 3.006 КР-1.