ЛМР 70.12.18

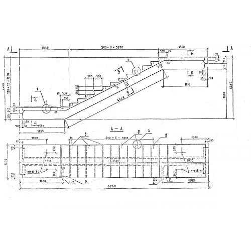
Чертеж изделия:
Характеристики изделия:
ПараметрЗначение
длина6960 мм
ширина1200 мм
высота2250 мм
масса3775 кг
нормативный документСерия 1.258 КЛ-2

ЛМР 58.12.18  Лестничные марш-площадки Серия 1.258 КЛ-2.