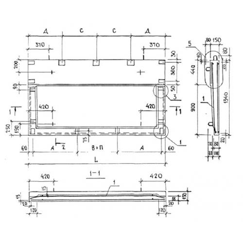
ПБК 36.13
Характеристики изделия:
| Параметр | Значение |
|---|---|
| длина | 3590 мм |
| ширина | 1340 мм |
| высота | 150 мм |
| вес | 1430 кг |
| серия | 1.137.1 КЛ-1 |
Цена:
Рассчитать стоимостьПБК 36.13 Плиты балконов консольные по серии 1.137.1 КЛ-1.
| Параметр | Значение |
|---|---|
| длина | 3590 мм |
| ширина | 1340 мм |
| высота | 150 мм |
| вес | 1430 кг |
| серия | 1.137.1 КЛ-1 |
ПБК 36.13 Плиты балконов консольные по серии 1.137.1 КЛ-1.
