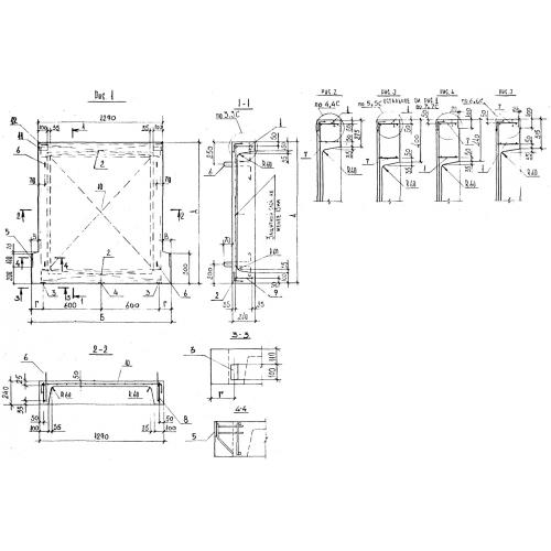
ЛПП 16.15

Чертеж изделия:
Характеристики изделия:
ПараметрЗначение
длина1610 мм
ширина1490 мм
высота240 мм
вес780 кг
серия1.050.9-4.93

ЛПП 16.15 Лестничные площадки и полуплощадки ребристые по серии 1.050.9-4.93.