Ф3

Чертеж изделия:
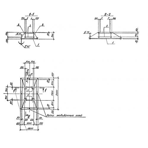
Характеристики изделия:
ПараметрЗначение
длина1800 мм
ширина3300 мм
высота700 мм
вес8350 кг
серия0-221-84

Ф3 Плиты фундаментные по серии 0-221-84.