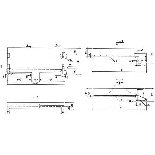
1ЛП 28.19 лестничные площадки плоские

Чертеж изделия:
Характеристики изделия:
ПараметрЗначение
длина2800 мм
ширина1900 мм
высота320 мм
масса2750 кг
нормативный документГОСТ 9818-85

1ЛП 28.19  Лестничные площадки плоские ГОСТ 9818-85.